Chủ đầu tư: Anh Hải
Địa chỉ: Thôn Bằng lục, xã Thụy Hòa, huyệnYên Phong, tỉnh Bắc Ninh
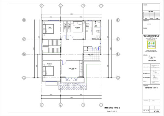
Tổng diện tích sàn: 230.8m2
Kiến trúc phong cách: mái nhật 2 tầng




Ảnh 3d mặt ngoài nhà



Công ty TNHH Xây Dựng, Thương Mại và Phong Thủy GK Việt Nam
“GK VIỆT NAM – KHÁT KHAO SÁNG TẠO CUỘC SỐNG.”
” FENG SHUI GK VIỆT NAM – Kiến tạo Cuộc sống Phồn Vinh “
Facebook cá nhân của Chuyên gia phong thủy: www.facebook.com/trinhgiatran
